The Harbourside #3611241 For Sale Property Detail Page

Id# 3611241
No: H200138409 (by agent)

Kowloon Station The Harbourside [Agency Ads]
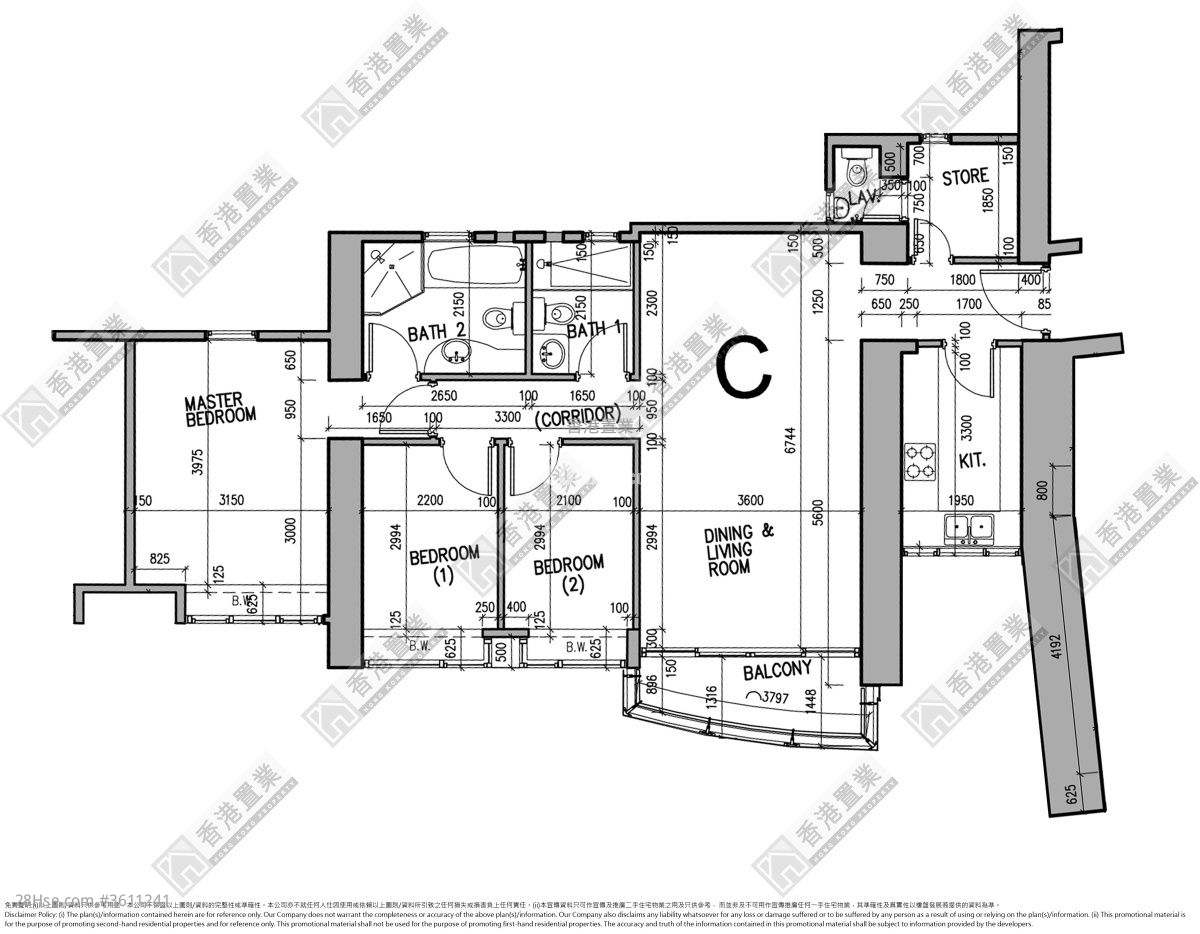
3-Seater C, Middle Floor
3-Bedroom Apartment In Victoria Harbor, Zhenghai, Founder, Practical High-Speed Rail, Above E

3-bedroom suite on Victoria Harbour, oceanfront, practical, high-speed rail, Elements Shopping Mall,

units, new maintenance, permanent sea views
hot sale, quick enquiry now
living room and bedrooms both enjoy unparalleled Victoria Harbour sea views,
high floor open sea view
saleable 1061 square feet, with 3 bedrooms, 1 ensuite bathroom and 1 maid's suite
welcome to inquire and arrange for viewing:
WhatsApp/Phone: +852 johnny

rare listing, near MTR station, south-facing, full ...

Apartment
Apartment
Hang Lung
Normal Ads
2 months ago posted
Visited#354
Units' Feature
View
Clubhouse
Ensuite
Maid bedroom
Good school zone
MTR nearby
Shopping Mall nearby
Sea view
Created:2025-10-17 | Updated:2025-11-20
Mobile QRCode
Sell Price
Sell 34 Millions ( RMB 31.435 Millions )
Mortgage Monthly Repayment
Initial Payment HKD$17 Millions, Mortgage Ratio 50%
Interest Rate 3%, Years 25
The above payment is for reference only.
Gross Area
1,443 ft² ( 134.1 m²)
Unit Price: @23,562 ( RMB @234,487 /m² )
Saleable Area
1,062 ft² ( 98.7 m² )
Unit Price: @32,015 ( RMB @318,611 /m² )
Estate
The Harbourside
Kowloon Kowloon Station
Block and Unit: 3-seater C
Building age: 21 Year
Direction (Living Room)
South
Floor zone
Middle Floor
Room and Bathroom
3 Bedrooms 2 Bathrooms
Kitchen type
Separate Kitchen
Kitchen cooking mode
Open-frame cooking
Pri School Net
Sec School Net
Address
No.1 Austin Road West
Kowloon( Mtr Station )
141 m
Austin Road West (e1)( Bus Stop )
171 m
Western Harbour Tunnel Bbi - Nga Cheung Road (c1)( Bus Stop )
184 m

Property Agency Company

Company Address: 九龍九龍站
Company License Number: C-018893
Sell: 12 Rental: 33
Hong Kong Property

Contact

Kwok Ming Wang Name Card

Personal License Number: s-577328

Tel:  852-97670xxx

Tel:  86-18676466xxx

English    Cantonese    Mandarin

The Harbourside - Other Units

The Harbourside Flat B, 66/F, Tower 1
1,123ft² @ $40,516
2025-12-03
Land Registry
3 Rooms
HKD$45.5 Millions
- -
794ft² @ $25,189
2025-12-03
Market Info
2 Rooms
HKD$20 Millions
1,061ft² @ $31,574
2025-12-03
Market Info
3 Rooms
HKD$33.5 Millions
The Harbourside Flat F, 48/F, Tower 2
1,056ft² @ $26,515
2025-11-28
Land Registry
3 Rooms
HKD$28 Millions
+ 12%
794ft² @ $24,874
2025-11-27
Market Info
2 Rooms
HKD$19.75 Millions
The Harbourside Flat F, 7/F, Tower 1
1,015ft² @ $24,828
2025-11-26
Land Registry
3 Rooms
HKD$25.2 Millions
+ 45.7%
The Harbourside Flat F, 38/F, Tower 3
1,051ft² @ $27,402
2025-11-21
Land Registry
3 Rooms
HKD$28.8 Millions
- 12.2%
The Harbourside Flat E, 65/F, Tower 2
818ft² @ $22,983
2025-11-19
Land Registry
2 Rooms
HKD$18.8 Millions
- 1%
The Harbourside Flat B, 41/F, Tower 3
1,061ft² @ $30,160
2025-11-18
Land Registry
3 Rooms
HKD$32 Millions
- 24.7%
The Harbourside Flat B, 66/F, Tower 1
1,123ft² @ $40,516
2025-11-14
Land Registry
3 Rooms
HKD$45.5 Millions
+ 88%
Hints
To avoid any fraud. We recommend No any prior online payment to the landlord or agency before site inspection or face to face greeting.
Our admin will manually verify all agency identity registration. If you find any mis-presentation or conduct by the agency, you can use the complaint form to inform us. Our admin will take every reported case seriously. Or you can submit your case to EAA (Tel: 852-21112777) directly by quotating the AdsId. We are always working with EAA to handle every cases happend on 28Hse.