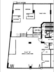
The Hampton, Flat B, 3/F, The Hampton

Happy Valley No.45 Blue Pool Road

Unit Information

Block:
The Hampton
Gross area:
Gross 3,235ft²
Transactions:
1

Records

2024-06-03

Sold Price
HKD$82 M
Building Unit Price
$25,348
Car Park
1 unit
Transaction Format
Land Registry